Planeeringute teated

« Tagasi

Veibri külas Väike-Emajõe (43201:003:0220) maaüksuse detailplaneeringu avalik väljapanek

Luunja Vallavolikogu võttis 28.09.2023 otsusega nr 1-3/27 vastu Veibri külas asuva Väike-Emajõe (43201:003:0220) maaüksuse detailplaneeringu (Arhitektibüroo Siim & Põllumaa OÜ töö nr 371).

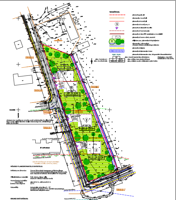
Detailplaneering on algatatud Luunja Vallavolikogu 26.08.2021 otsusega nr 42 eesmärgiga kaaluda võimalusi planeeringualale ühe- ja kahepereelamu maa kruntide moodustamiseks ja kruntidele ehitusõiguse andmist. Planeeringuala pindala on ligikaudu 0,5 ha.

Detailplaneeringuga kavandatakse Väike-Emajõe maaüksusele kaks üksikelamut ja üks paariselamu. Kummalegi paariselamu sektsioonile on ette nähtud eraldi krunt suurustega 1011 ja 1001 m², krundile on lubatud rajada üks kaksikelamu sektsioon ja üks abihoone ehitisealuse pinnaga kokku kuni 200 m² krundi kohta. Üksikelamu krundid on suurusega 1002 ja 1502 m². Üksikelamu kruntidele on lubatud rajada üks üksikelamu ja üks abihoone ehitisealuse pinnaga väiksemal krundil kuni 200 m² ja suuremal kuni 300 m². Hoonete kõrgus on lubatud kuni 9 m elamul ja 5 m abihoonel, katusekalle 0-15 kraadi. Juurdepääsud elamukruntidele planeeritakse otse Jõekaare teelt, veevarustus ja reoveekanalisatsioon lahendatakse AS Tartu Veevärk ühisvõrkudest. Planeering on kooskõlas Luunja valla üldplaneeringuga ehk detailplaneering ei sisalda üldplaneeringu põhilahenduse muutmise ettepanekut.

Detailplaneeringu realiseerumisel avaldub positiivne majanduslik mõju uute elanike lisandumise näol, mistõttu Luunja valla elanike arv suureneb. Lisaks suureneb kohalike teenuseid ja tooteid kasutatavate isikute arv. Planeeringualal ja vahetus läheduses ei asu muinsuskaitsealused mälestisi ja nende kaitsevööndeid. Detailplaneeringuga on määratud kruntidele sobilikud arhitektuurilised tingimused hoonete rajamiseks. Ühe- ja kahepereelamu rajamine planeeritud asukohas on kooskõlas asutusstruktuuri paiknemisega ja üldplaneeringujärgse juhtfunktsiooniga, mis omakorda suunab asustusstruktuuri. Tuginedes eeltoodule, võib eeldada, et hoonete rajamisel negatiivne mõju kultuurilisele keskkonnale puudub. Detailplaneeringuga planeeritud üksik- ja kaksikelamute rajamisega kaasnev peamine positiivne sotsiaalne mõju väljendub uute kogukonnaelanike näol. Planeeringuga kaasnevatest mõjudest on võimalik lugeda pikemalt detailplaneeringu seletuskirja peatükis 2.12 „Planeeringu elluviimisega kaasnevate mõjude hinnang".

Detailplaneeringu avalik väljapanek toimub 06. november - 20. november 2023 Luunja vallamajas (Puiestee tn 14, Luunja alevik, Luunja vald, Tartu maakond, 62222) ja valla veebilehel www.luunja.ee. Avaliku väljapaneku jooksul on igal isikul õigus avaldada detailplaneeringu kohta arvamust. Arvamused palume saata elektrooniliselt aadressile vald@luunja.ee või postiga aadressile Puiestee tn 14, Luunja alevik, Luunja vald, Tartu maakond, 62222. Avaliku väljapaneku jooksul on paberkandjal materjalidega võimalik tutvuda asutuse lahtiolekuaegadel, elektroonselt endale sobival ajal.